Description
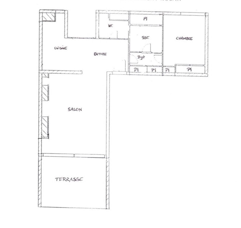
VENDU par l'agence. AUTEUIL SUD. Hameau Michel-Ange. Dans un immeuble récent bien entretenu, superbe deux pièces de 70 m2 (69,05 loi carrez) avec une profonde terrasse carrée de 20 m2 plein ciel vue panoramique et Tour Eiffel au loin. Situé dans une petite rue calme au sein d'un quartier de charme composé de maisons et hôtels particuliers, l'appartement se compose d'une vaste espace de vie de 44 m2 comprenant une entrée et cuisine ouverte de 17,5 m2, ainsi qu'un vaste séjour de 27 m2 ouvrant sur la terrasse de plain-pied offrant une vue sur tout Paris, une chambre de 13 m2 au calme sur jardins, une grande salle de douche de 6 m2, des toilettes et buanderie de 3,5 m2. Il est possible de cloisonner la cuisine. Nombreux placards. Appartement refait à neuf , parfait état, belles prestations. Très calme. Proximité tous commerces, marchés, transports. Une cave de 4 m2 complète ce bien de qualité. Possibilité de louer un parking dans l'immeuble.Charges mensuelles 300 euros incluant chauffage, gardiens et ascenseur. Taxe foncière 1046 euros.Contact : 06 14 51 17 89 (3.26 % honoraires TTC à la charge de l'acquéreur.)Copropriété de 300 lots - dont 152 lots habitation. (Pas de procédure en cours).Charges annuelles : 3616 euros.














